招商熱線: 136-95155-090 24小時電話咨詢服務
空氣能熱泵專業研發制造商 上萬工程案例 美好生活,由我開始
當前位置:首頁 - 空氣源熱泵采暖解決方案
住宅地板輻射采暖解決方案
時間:2018-01-09
工程概況
南京地區的某自建別墅,地上三層,地下一層。各層采暖面積:三層137平方米,二層214平方米,一層253平方米。計劃用空氣源熱泵采暖機組供應40/45攝氏度熱水,戶內地板輻射采暖,室外設計溫度下運行十四小時。已知370粘土磚外墻,中空玻璃。試分析確定地暖盤管間距,并試選空氣源熱泵機組容量。
解析:查《民用建筑供暖通風與空氣調節設計規范》(GB50736-2012)附錄A,南京供暖室外計算溫度?。?.8攝氏度,室內設計溫度取18攝氏度。
(1)東、西墻基本耗熱量
房間外墻:4.8X2.7=13平方米;墻體的傳熱系數是1.56瓦/平方.k,墻體耗熱量=1.56X13X(18+1.8)=402瓦
南窗墻基本耗熱量
房間外墻:6.9X2.7=18.6平方米;窗體面積:(1.2+1.8+1.2)X1.5=6.3平方米;
墻體面積:18.3-6.3=12.3平方米;
墻體的傳熱系數是1.56瓦/平方.k,窗體的傳熱系數是2.4瓦/平方.k。
墻體耗熱量=1.56X12.3X(18+1.8)=380W
窗體耗熱量=2.4X6.3X(18+1.8)=299W
南窗墻耗熱量
房間面積6.9X4.8=33平方米;屋頂的傳熱系數是1W/平方.K
屋頂耗熱量=1X33X(18+1.8)=653W
冷風滲透耗熱量(換氣次數取0.5次/小時)
Q=0.28X1.01X1.29X0.5X2.7X33X(18+1.8)=322W
總耗熱量:402+402+679+653+322=2458W
頂層熱指標:2458/33=74瓦/平方米
每天供熱14小時,末端散熱能力:74X24/14=127瓦/平方。
(2)觀察知非頂層房間中東南角的基本耗熱量指標最大二層(非頂層)右下角房間的熱指標:
(402+679+322)/33=43瓦/平方,每天供熱14小時,末端散熱能力74瓦/平方。
各層采暖面積:三層137平方米,二層214平方米,一層253平方米。
該建筑耗熱量:137X74+(214+253)X43=30219W
別墅熱指標:30219/(137+214+253)=50瓦/平方米
查取《地暖規程》GJG142-2012附錄B1.1.1-1,的散熱量表:
陶瓷地面,室內18攝氏度,空氣源熱泵水溫平均42.5攝氏度,200mm的間距散熱量是121瓦/平方米,基本滿足要求。頂層以200mm間距為主,其他層可以采用250~300的間距(250mm的是115瓦/平方米,300mm的是108瓦/平方米)。
通過計算,出水溫度45攝氏度的空氣源熱泵,在連續供暖的情況下,北方(室外-5.5攝氏度)370外墻,中空玻璃的自建房頂層主間距250mm(個別邊角房間間距可取200mm)沒有問題;非頂層同樣情況下,主間距可取300mm(邊角房間間距可取250mm)。
當然如果是間歇供暖,對應間距建議加密50mm。即頂層主間距可取200mm(個別邊角房間間距可取150mm);非頂層主間距可取250mm(個別邊角房間間距可取200mm)。室內地暖盤管末端散熱余量較大,應增設溫控裝置。
根據1匹(馬力)=735(瓦)及能效比(供熱、制冷系數)公式ε=Q/W,假設室外采暖設計溫度下(-1.8攝氏度)能效系數為3.5(和室外溫度有關),每天供熱14小時需要外機實際供熱能力:
41098X(24/14)/(3.5X735)=27匹,可以選6臺5匹空氣源熱泵采暖機組。運行時,可根據室內負荷確定所需啟動的空氣源熱泵數量。
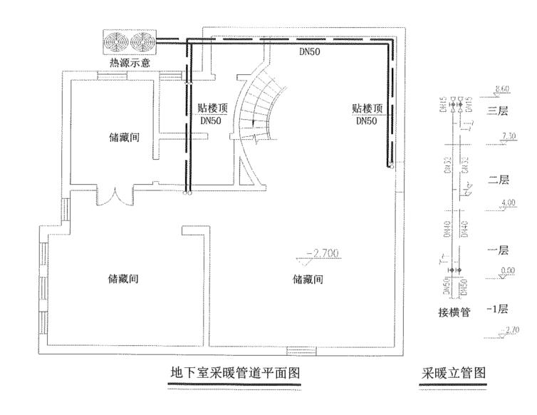
鑒于地暖墊層本身有較大的蓄熱能力,足以維持室內的熱舒適性,可不設蓄能水箱,采用空氣源熱泵機組直供。各層地暖平面如圖。



